-- | 1K (42.79㎡)
想像してみてください。全方位に窓がある贅沢なお部屋を…。
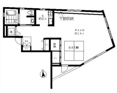
今回は、窓が多く、個性的な多角形のデザインが魅力のペット可1Kのお部屋をご紹介いたします。
東急田園都市線「駒沢大学」駅まで徒歩19分。ちょっと遠いと感じるかもしれませんが、深沢はバス移動がとても便利なエリアです。
- 渋谷駅までバスで約30分
- 恵比寿駅までバスで約23分
- 自由が丘駅までバスで約11分
- 等々力駅までバス約6分
都心へダイレクトにアクセスできるため、通勤もお出かけもラクラク♪まいばすけっとやセブンイレブンがあり、日常の買い物も便利です。
休日には、緑豊かな駒沢公園でリラックスできます。駒沢公園通りには、おしゃれで美味しい飲食店がずらり。図書館も徒歩圏内にあり、自然も文化も楽しめる立地です。
マンションは、EV外断熱工法を採用しており、壁の厚さは30センチメートルの堅牢なRC造りです。さらにペアガラスを使用しているため、光熱費の抑制も期待できます。
この個性的なデザインの唯一無二なお部屋で、新しい世界を体験してみませんか?
おすすめポイント









キッチンスペック



セキュリティ

残念ポイント

物件概要
| 家賃 | -- |
|---|---|
| 管理費 | -- |
| 間取り/広さ | 1K / 42.79㎡ |
| フロア | 2階 / 3階建(南向) |
| アクセス | 田園都市線駒沢大学駅 / 徒歩19分 |
| 所在地 | 世田谷区深沢4丁目 |
| 構造 | 鉄筋コンクリート |
| 築年 | 2006年7月 |
特徴
2階以上
SOHO相談
TV付モニター
ウォッシュレット
エアコン付
オートロック
コンロ2口以上
バストイレ別
ペット相談
宅配ボックス
室内洗濯機置場
楽器相談
独立洗面台
礼金ゼロ
追い焚きお風呂
フロアマップ
所在地
その他
| 契約形態 | 普通賃貸借契約 |
|---|---|
| 契約期間 | 2年間 |
| 取引態様 | 媒介 |
| 礼金 | -- |
| 敷金 | -- |
| 仲介手数料 | -- |
| ペット飼育の場合 | 敷金2ヶ月、敷金償却1ヵ月 |
| 家財保険 | 23,000円 |
| 更新料 | 新賃料の1ヵ月分 |
| 鍵交換費用 | 22,000円 |
| 退去時クリーニング費用 | 借主負担 |
| 保証会社要 | 契約時 総賃料の50%、 翌年以降 10,000円/年 |
| 駐輪場 | 屋内月額2000円 |
| 禁煙者限定 |


